A House of Slowly Moving Clouds

서운재

A House of Slowly Moving Clouds (Seounjae) is a space combining a calligraphy studio, gallery, and residence. Calligraphy is a traditional art practiced with a relatively slow rhythm, in contrast to the hurried pace of contemporary life. In a place where time flows slowly, like the gentle movement of clouds, one is able to confront oneself and cultivate meaning with patience and depth. is intended as a space where calligraphy is learned not merely as a skill but as a way of life, in a meditative and serene environment.Is it possible for tradition to flow without stagnation? Seounjae combines a calligraphy studio, gallery, and residence, offering a space to experience and reinterpret tradition in the slow passage of time.

01_서운재는 서예작업실과 전시공간, 그리고 주택)이 함께 있는 공간이다. 서예는 다소 느린 호흡으로 실천하고 익혀가는 전통 예술이다. 현대 사회의 조급함과는 사뭇 다른 영역이다. 구름이 천천히 움직이는 것처럼 시간의 흐름이 느린 장소에서 자신과 마주하며 천천히 깊이 의미있게 마음을 수련해 가야 한다. 서운재는 명상적이고 평온함이 깃든 공간에서 삶의 자세로서의 서예를 익혀가는 장소이다.

02_전통적 유산과 실험적 다양성 사이의 지속적 대화는 가능할까. 구름이 자연스러운 흐름속에서 조금씩 자신의 모습을 바꾸어가는 것처럼 전통도 그런 모습이어야 한다. 서운재는 시간속에서 전통을 체험하고 재해석하는 장소이다.

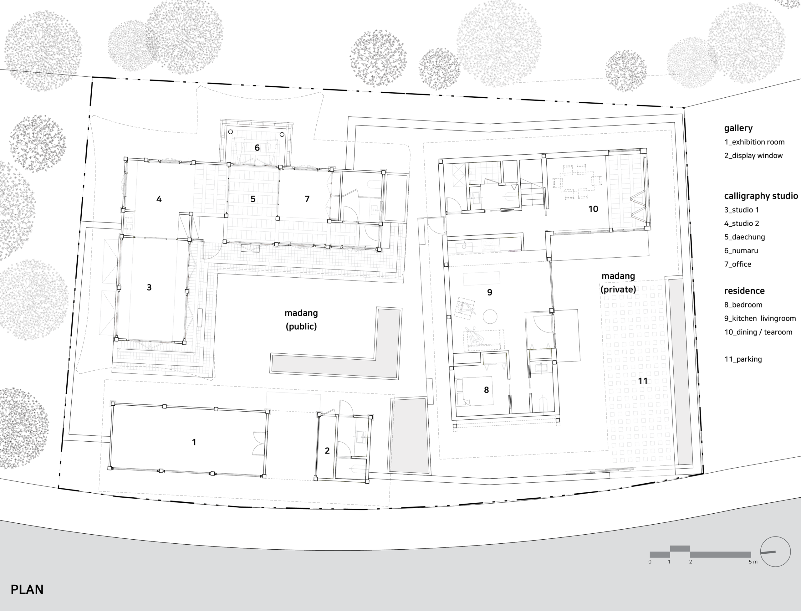
The project site is located on the northern edge of a hanok residential district in Hwaseong City, between Yungneung & Geolleung Royal Tombs and Yongjusa Temple, with a 15-meter-wide road to the west and a waterside area to the east. The elongated north–south orientation and shape of the site posed environmental challenges for design.

 

프로젝트의 위치는 화성 융건릉과 용주사의 사이에 있는 한옥마을 택지 지구내 북측에 위치하고 있고, 서쪽으로는 폭 15미터 도로, 동쪽으로는 수변공간이 자리하고 있다. 남북으로 길게 뻗어 있는 대지의 방향과 형태에 그대로 순응하여 설계하는 데에는 환경적으로 불리한 점이 있었다. 대지를 반으로 쪼개어 북쪽에는 서예 작업실과 전시공간, 그리고 남쪽에는 주택을 두고, 각각의 영역에서 접근할 수 있는 마당을 두었다. 공적공간과 사적공간의 위계를 형성하고, 각채의 남측에 마당을 두어 채광이슈를 개선하고, 외부 자연과 연결될 수 있도록 하였다.

Each program is housed in an individual “chae” (building unit), with each chae engaging with the tradition of hanok in distinct way. By having the three reimagined hanok coexist on a single site, the project seeks to open a continuous dialogue between traditional heritage and experimental diversity.

각 프로그램은 개별적 ‘채’로 나뉘어져 있고, 각 ‘채’들은 각기 다른 방식으로 한옥의 전통을 수용한다. 세가지 재구상된 한옥이 한 대지위해 공존함으로써 전통적 유산과 실험적 다양성 사이의 지속적인 대화를 열고자 한다.

The site was divided in half: the northern portion accommodates the calligraphy studio and gallery, while the southern portion houses the residence, each with access to its own courtyard. This arrangement establishes a hierarchy between public and private spaces, improves daylighting by situating courtyards to the south of each building, and connects the interior spaces to the surrounding natural environment.

The northern courtyard is intended as an open space freely accessible to gallery visitors and calligraphy students, evoking the atmosphere of a traditional sarangchae (men’s quarter) courtyard. The courtyard connected to the residence provides a quieter environment, supporting private enjoyment and relaxation.

Just as the traditional haengnangchae (service wing) in hanok served as a protective barrier, the gallery located along the street acts as a buffer, shielding the courtyards from street activity. One central kan (bay) of the gallery is left open to serve as the main entrance from the street to the courtyard.

The calligraphy studio employs hanok spatial division and expansion techniques, allowing flexible separation or connection of spaces to accommodate different class sizes. When the doors of the daecheongmaru (main hall) and numaru (raised platform) are fully opened, the space becomes a single semi-indoor/semi-outdoor area that connects to both the courtyard and the adjacent reservoir.

The residence, designed with a timber-frame structure, overcomes the span limitations of traditional hanok, providing a more spacious interior. Details are deliberately designed with slight exaggeration to reproduce the sense of proportion, density, and rhythm of traditional hanok roofs and rafter arrangements.

북측의 마당은 전시관람객과 서예교습생들이 자유롭게 사용할 수 있는 열린 공간으로 사랑채에 딸린 마당과 비슷한 느낌이 되도록 의도했다. 주택에 연결된 마당은 보다 조용한 환경에서 사적 자유를 누릴 수 있도록 계획하였다.

전통한옥의 행랑채가 담장과 같은 역할을 했던 것처럼 도로변에 위치한 갤러리는 도로의 번잡함으로부터 마당을 지켜주는 완충적인 역할을 한다. 갤러리의 중앙부 칸을 하나 비워서 이를 도로에서 마당으로 들어오는 주출입구로 사용하였다.

서예작업실은 한옥공간의 실 구분과 확장 방식을 활용하여 다양한 수업규모에 맞추어 공간을 분리/연결하여 사용할 수 있게 하였다. 대청마루와 누마루의 문을 완전히 열면, 마당과 저수지쪽으로 연결된 반실내/반야외 공간이 된다.

중목구조를 사용하여 계획된 주택은 전통한옥의 경간 제한을 극복하고 보다 넒은 실내공간을 제공한다. 한옥지붕의 비례감과 서까래 배치의 밀도 및 리듬감 등을 재현하기 위해 다소 과장된 매너로 고안된 디테일을 적용하였다.

View of the house and gallery entrance from the street side
A public courtyard adjoining the gallery and calligraphy studio
A private courtyard reserved for the house, ensuring privacy
Riverside and Yongjusa Temple as seen from the numaru (elevated wooden floor)

Project  Seounjae_A House of Slowly Moving Clouds

Year  2025

Type   Exhibition

Program  Gallery, Art Studio, Residence

Site Area  615.12 m²

Total Floor Area  206.67 m²

Location  Hwaseong, Gyeonggi-do, Korea

Design Team  Okhyun Kim

Privacy Preference Center